preloader image
  • Trouvez

    une agence
  • Contactez

    un(e) conseiller(e)

  • Découvrez

    Nos Maisons
  • Actualités

    informations
  • De 70m2 à 90m2
    De 70m2 à 90m2
  • 1 à 2 à 3 à 4 chambres
    1 à 2 à 3 à 4 chambres
  • Rapport Qualité/Prix
  • 2 pans ou 4 pans
  • RE2020

Classe énergie

  • A
  • B
  • C
  • D
  • E
  • F
  • G

Ges

  • A
  • B
  • C
  • D
  • E
  • F
  • G

Descriptif du modèle

Une petite maison de charme bien conçue

Si vous cherchez une maison de dimensions raisonnables pour bien commencer dans la vie, ne cherchez plus ! Le modèle Proissans va répondre à vos attentes. Elle a tout ce qu’il faut et en plus, elle est jolie !

 

Réalisez votre projet de construction en optant pour la Proissans

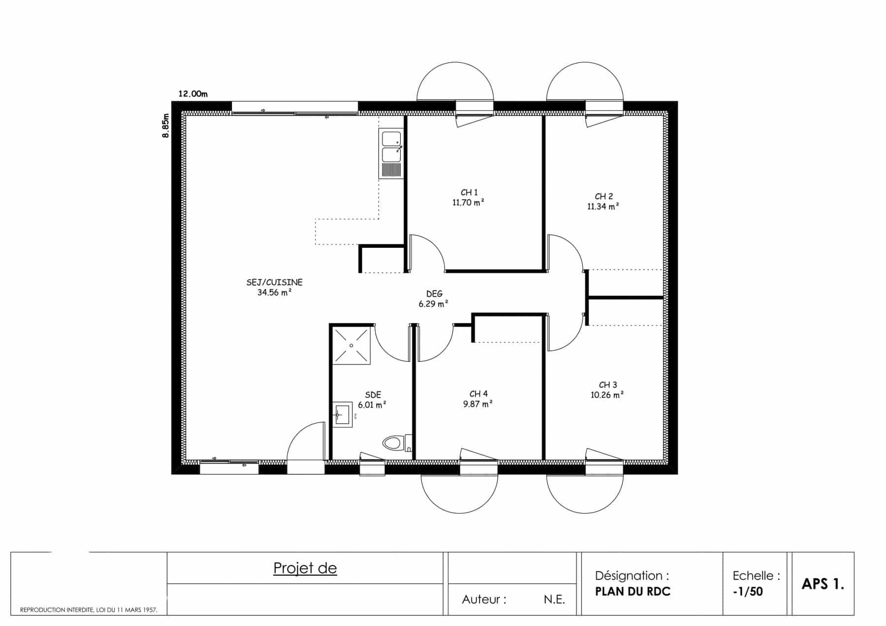
Cette demeure de plain-pied a une surface habitable de 60m². C’est un modèle comprenant deux jolies chambres et une salle de bains avec w.c. séparés. Son agréable pièce de vie est agréable est dotée d’une cuisine US à laquelle est accolé un cellier. C’est un intérieur douillet que vous offre ce chaleureux logis à l’agencement traditionnel.

Sa façade en décroché permet une avancée de toit au-dessus de l’entrée. Et vous apprécierez la pergola sur terrasse donnant sur le séjour.

Si vous souhaitez construire cette maison confortable pour commencer une nouvelle vie, n’hésitez pas à nous contacter pour en savoir plus !

 

Options les plus vendues sur ce modèle

  • Enduit bi-ton
  • Menuiseries Aluminium
  • Car Port
  • Poêle à pellets

Prix de votre modèle

Veuillez indiquer votre code postal pour connaitre le prix de ce modèle

Obtenir des informations pour faire construire

Formulaire contact principa

Plans du modèle

  • De 70m2 à 90m2
    De 70m2 à 90m2
  • 1 à 2 à 3 à 4 chambres
    1 à 2 à 3 à 4 chambres
  • Rapport Qualité/Prix
  • 2 pans ou 4 pans
  • RE2020
Télécharger les plans

Vue 3D du modèle

Visite Virtuelle de cette maison

Modèle similaire

Maison traditionnelle

  • Dalle étage béton

Maison traditionnelle

  • 2 pans ou 4 pans
  • Enduit bi-ton

Maison traditionnelle

  • Porche
  • Garage intégré

Maison traditionnelle

  • 2 pans ou 4 pans
  • Garage intégré
  • Galerie

Maison traditionnelle

  • Rapport Qualité/Prix
  • 2 pans ou 4 pans

Maison traditionnelle

  • Porche
  • Garage intégré

Découvrez nos plans et modèles à personnaliser Faites construire votre maison en Dordogne ou Gironde