preloader image
  • Trouvez

    une agence
  • Contactez

    un(e) conseiller(e)

  • Découvrez

    Nos Maisons
  • Actualités

    informations
  • De 74m2 à 100m2
    De 74m2 à 100m2
  • 2 à 3 chambres
    2 à 3 chambres
  • Porche
  • Garage intégré

Classe énergie

  • A
  • B
  • C
  • D
  • E
  • F
  • G

Ges

  • A
  • B
  • C
  • D
  • E
  • F
  • G

Descriptif du modèle

Découvrez la Maison Monalisa : Une demeure familiale traditionnelle aux lignes modernes

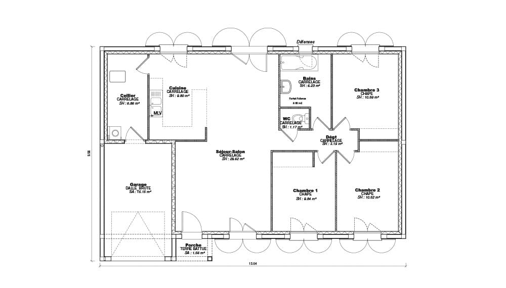
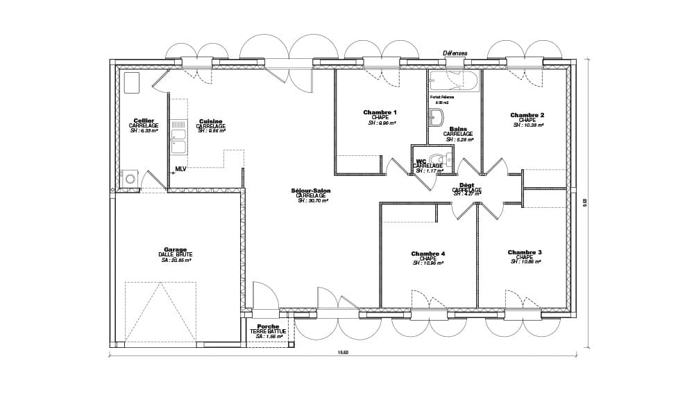
Pensée pour accueillir votre famille dans un cadre à la fois spacieux et fonctionnel, le moèle Naussannes allie harmonieusement style traditionnel et touches contemporaines. Avec des surfaces variant de 74 m² à 100 m², ce modèle s’adapte à toutes vos envies tout en offrant un confort optimal.


Un intérieur fonctionnel et lumineux

  • 2 à 4 chambres selon les configurations, pour accueillir toute la famille avec possibilité de suite parentale.
  • Pièce de vie conviviale : un grand espace séjour-salon ouvert sur une cuisine moderne pour favoriser la convivialité et les moments de partage.
  • Cellier attenant : pratique pour le rangement, avec un accès direct au garage intégré.
  • Bains et WC séparés : conçus pour le confort et la praticité au quotidien.

Une architecture traditionnelle revisitée

La Maison Naussannes se distingue par son jeu de toiture élégant qui sépare harmonieusement les espaces tout en créant une belle dynamique visuelle. Ses lignes traditionnelles et son ouverture généreuse sur le jardin en font une maison lumineuse et agréable à vivre.

Options les plus vendues sur ce modèle

  • Menuiseries Aluminium
  • Domotique

Prix de votre modèle

Veuillez indiquer votre code postal pour connaitre le prix de ce modèle

Obtenir des informations pour faire construire

Formulaire contact principa

Plans du modèle

  • De 74m2 à 100m2
    De 74m2 à 100m2
  • 2 à 3 chambres
    2 à 3 chambres
  • Porche
  • Garage intégré

Vue 3D du modèle

Visite Virtuelle de cette maison

Modèle similaire

Maison traditionnelle

  • Dalle étage béton

Maison traditionnelle

  • 2 pans ou 4 pans
  • Enduit bi-ton

Maison traditionnelle

  • Porche
  • Garage intégré

Maison traditionnelle

  • 2 pans ou 4 pans
  • Garage intégré
  • Galerie

Maison traditionnelle

  • Rapport Qualité/Prix
  • 2 pans ou 4 pans

Maison traditionnelle

  • Rapport Qualité/Prix
  • 2 pans ou 4 pans
  • RE2020

Découvrez nos plans et modèles à personnaliser Faites construire votre maison en Dordogne ou Gironde